2102 Century Park Lane #210

Los Angeles, CA 90067

$ 1,180,000

Price

2

Beds

2

Baths

1,680 Sq. Ft.

$702 / Sq. Ft.

160 Days On Market

Favorite

Share

Century City Building

Have You Been Pre-Qualified? Start Now

Listing provided by agent Yelena Mun BRE# 01975696 at Beverly And Company, Inc..

Last Updated: 14 days ago

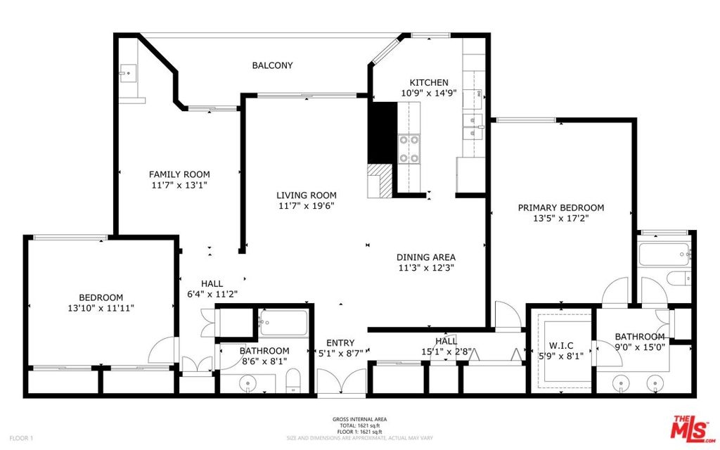
NEW PRICE! Prime Century City Value. A rare opportunity just became an exceptional value in guard - gated Park Place, one of Century City's most prestigious communities - just moments from Beverly Hills. This spacious 2-Bedroom + DEN, 2- bath residence offers approx. 1,680 SF of open-concept living with prime south-facing exposure, filling the home with abundant natural light and tranquil views. The thoughtfully designed floor plan features a large living room with fireplace, soaring ceilings, formal dining area, and a sun-filled kitchen with breakfast nook. Two private bedroom wings provide ideal separation and privacy. The generous primary suite includes a walk - in closet, dressing room, double sink vanity, makeup station, and built -in linen cabinetry. The second bedroom offers sleek built-in closets with excellent storage. The ** DEN - ideal as a third bedroom or office - **features wood parquet flooring and direct access to the private balcony. additional highlights include a hallway laundry closet, new carpet & partial fresh paint, wooden plantation shutters, and side - by -side parking with storage. Residents of Park Place enjoy resort- style amenities, including 24 - hour guarded security, multiple pools, tennis courts, sauna, fitness center, jacuzzi, and beautifully landscaped grounds. Ideally located near Westfield Century City, Rodeo Drive, Westwood, and West Hollywood, with world-class shopping, dining, and entertainment just minutes away. Several photos are virtually staged. Don't miss this exceptional opportunity -schedule your private showing today.

Show More
Property Type Condominium
Lot Size 589,458 sq. ft.
Year Built 1985
MLS # 25581347
Listing Type Active
Heating Central, Fireplace(s)
Cooling Central Air
Pool Association, Fenced, Heated, In Ground
Laundry Washer Included, Dryer Included, Stackable
Parking Assigned, Direct Garage Access, Community Structure, Built-In Storage, Subterranean, Side by Side, Parking Space, Guest

Payment Calculator

40% Complete (success)
80% Complete (danger)
20% Complete
80% Complete (danger)
60% Complete (warning)
Principal and Interest
Property Taxes
Homeowners' Insurance
HOA Dues
Mortgage Insurance
Image Calculator Icon Customize Calculations | Compare Mortgage Rates

Property Details for: 2102 Century Park Lane #210

Interior Features

Bathroom Information
  • 2 full baths
Laundry Information
  • Washer Included
  • Dryer Included
  • Stackable
Fireplace Information
  • Living Room
Interior Features
  • Crown Molding
Heating & Cooling
  • Central Air
  • Central
  • Fireplace(s)

Parking / Garage, Multi-Unit Information, Location Details

Interior Information
  • Crown Molding
Parking Information
  • Assigned
  • Direct Garage Access
  • Community Structure
  • Built-In Storage
  • Subterranean
  • Side by Side
  • Parking Space
  • Guest

Exterior Features

Pool & Spa Information
  • Association
  • Fenced
  • Heated
  • In Ground

Property / Lot Details

Property Features
  • City Lights
  • Trees/Woods
Lot Information
  • Lot Size (Sq. Ft) 589,458
Property Information
  • Attached
  • Tax Parcel Number: 4329009030

Nearby Businesses

  • Grocery Stores
  • Drug Stores
  • Coffee Shops
  • Restaurants
  • Health & Medical
  • Fitness & Activity
  • Arts & Entertainment
  • Nightlife & Bars
    Browse all businesses in Los Angeles, CA, 90067

    Tour This Condo

    SATURDAY

    31

    JAN

    SUNDAY

    1

    FEB

    MONDAY

    2

    FEB

    TUESDAY

    3

    FEB

    WEDNESDAY

    4

    FEB

    THURSDAY

    5

    FEB

    FRIDAY

    6

    FEB

    Schedule A Tour
    Ryan Case, Licensed Realtor & Team Lead

    Ryan Case

    Licensed Realtor & Team Lead

    213-449-4909 Contact Ryan Case
    Listing provided by agent Yelena Mun BRE# 01975696 at Beverly And Company, Inc..

    Last Updated: 14 days ago