108 W 2nd Street #PH1007

Los Angeles, CA 90012

$ 988,000

Price

2

Beds

1

Baths

1,700 Sq. Ft.

$581 / Sq. Ft.

99 Days On Market

Favorite

Share

Have You Been Pre-Qualified? Start Now

Listing provided by agent David Lukan BRE# 01873011 at Compass and Bill Cooper BRE# 01309009 at Coldwell Banker Exclusive.

Last Updated: 0 days ago

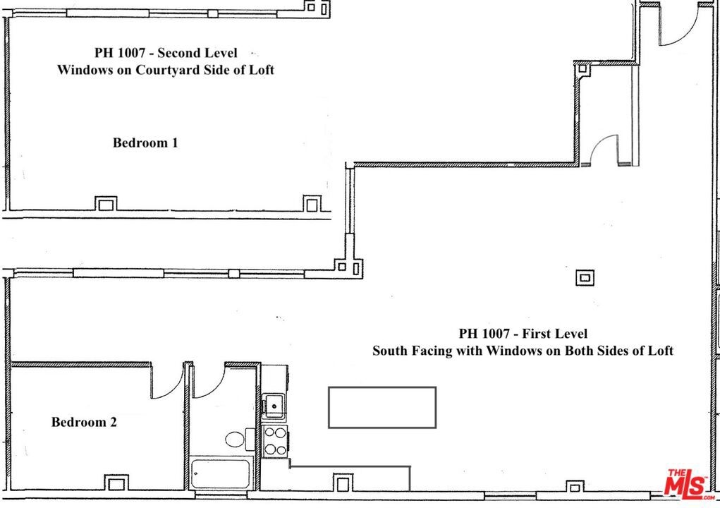
**DTLA Penthouse with 900 Sq. Ft. Private Rooftop + MILLS ACT Tax Savings + PARKING IN BUILDING** Experience one of Downtown Los Angeles' most remarkable penthouses, set within the Mills Act designated Higgins Building, offering significant property tax savings year after year. This dramatic two-story, three-level live/work loft is among the building's largest floor plans, featuring expansive windows on both sides that flood the space with natural light. A spiral staircase connects beautifully designed interiors to the show stopping highlight, your own 900 sq. ft. private rooftop deck, professionally landscaped for entertaining or soaking in panoramic skyline views. The chef's kitchen is equipped with Thermador stainless appliances, marble countertops, custom cabinetry, and a stylish island, an ideal balance of form and function. The spa-inspired bath features marble and artisan tile, offering sweeping skyline views even from the shower. Additional highlights include designer lighting, generous closets, and in-unit washer/dryer. The private back bedroom or office provides tranquility, while the second-level primary suite includes custom closet build-outs and direct rooftop access. Setting this unit apart is the rare opportunity to lease a dedicated parking spot directly inside the building garage. The Higgins Building stands amid Downtown's architectural icons including City Hall, the LA Times Building, and Vibiana/Redbird to name a few. Across the street, enjoy Plaza de California dog park and the new Historic Broadway Metro station for effortless commuting. Step into the grand lobby and be transported to another era, with restored mosaic tile floors, wrought-iron caged elevators, imported marble wainscoting, zinc-framed doorways, and period detailing that celebrate the building's storied past. More than a penthouse, this is a statement of style, history, and downtown culture at its finest.

Show More
Property Type Condominium
Year Built 1910
MLS # 25610253
Listing Type Active
Heating Central
Cooling Central Air
Laundry Washer Included, Dryer Included, In Closet, Inside
Parking Controlled Entrance, Covered, Assigned, Private, Parking Space

Payment Calculator

40% Complete (success)
80% Complete (danger)
20% Complete
80% Complete (danger)
60% Complete (warning)
Principal and Interest
Property Taxes
Homeowners' Insurance
HOA Dues
Mortgage Insurance
Image Calculator Icon Customize Calculations | Compare Mortgage Rates

Property Details for: 108 W 2nd Street #PH1007

Interior Features

Bathroom Information
  • 1 full bath
Laundry Information
  • Washer Included
  • Dryer Included
  • In Closet
  • Inside
Heating & Cooling
  • Central Air
  • Central

Parking / Garage, Multi-Unit Information, Location Details

Parking Information
  • Controlled Entrance
  • Covered
  • Assigned
  • Private
  • Parking Space

Exterior Features

Property / Lot Details

Property Features
  • City Lights
Lot Information
Property Information
  • Attached
  • Tax Parcel Number: UNAVAILABLE

Nearby Businesses

  • Grocery Stores
  • Drug Stores
  • Coffee Shops
  • Restaurants
  • Health & Medical
  • Fitness & Activity
  • Arts & Entertainment
  • Nightlife & Bars
    Browse all businesses in Los Angeles, CA, 90012

    Tour This Condo

    SATURDAY

    31

    JAN

    SUNDAY

    1

    FEB

    MONDAY

    2

    FEB

    TUESDAY

    3

    FEB

    WEDNESDAY

    4

    FEB

    THURSDAY

    5

    FEB

    FRIDAY

    6

    FEB

    Schedule A Tour
    Ryan Case, Licensed Realtor & Team Lead

    Ryan Case

    Licensed Realtor & Team Lead

    213-449-4909 Contact Ryan Case
    Listing provided by agent David Lukan BRE# 01873011 at Compass and Bill Cooper BRE# 01309009 at Coldwell Banker Exclusive.

    Last Updated: 0 days ago